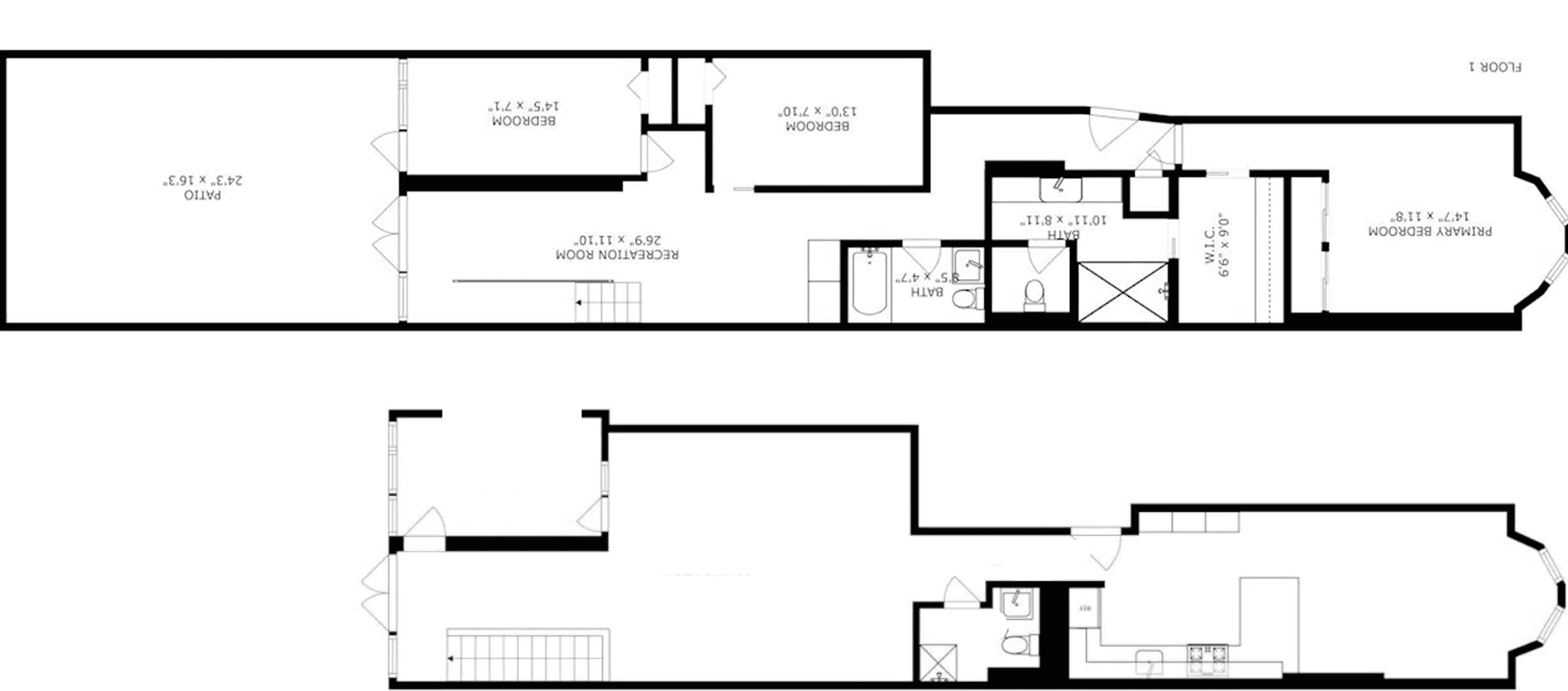
UWS Landmark Townhouse

The parlor and garden levels were updated to reflect a desire for clean lines and integrated storage, while preserving the home’s pre-war stature and architectural integrity.

Before
After

“We were nervous about tackling a renovation, but Michael made the entire process smooth, reassuring, and genuinely enjoyable” - Jennifer M.

arrow